专业自控阀门10载以上
工恒阀门[工匠精神][品质永恒]
联系方式
021-80392609
15601629388
您当前的位置: 主页 > 阀门标准

阀门标准

平行式双闸板闸阀力矩参考表

平行式双闸板闸阀力矩参考表

平行式双闸板闸阀 力矩参考表 公称尺寸 PN/Mpa(Class) 1.6、2.5 (150) 4.0(300) 6.4(400) 10.0(600) 16.0(900) DN/mm NPS/in 力 矩/N-m 50 2 18 22 29 30 54 65 2 1/2 37 46 61 67 102 80 3 46 65 79 90 115 100 4 55 88 108 130 169 150 6 72 1...
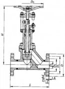
J41H、J41Y、J41W型150(Lb)~400( Lb)钢制截止阀

J41H、J41Y、J41W型150(Lb)~400( Lb)钢制截止阀

主要性能参数 J41H、J41Y、J41W型150(Lb)~400( Lb)钢制 截止阀 主要性能参数 型号 压力级 (Lb) 适用温度 /℃ 适用介质 阀体、阀盖 阀瓣 阀杆 填料 J41H-150(Lb) -400(Lb) 150 ~ 400 425 水、油品、 蒸汽 碳素钢 铬不锈钢 铁基合金 柔性石墨 J41Y-150(Lb)P -4...
CJc41H-150(Lb)型锻钢法兰连接波纹管截止阀

CJc41H-150(Lb)型锻钢法兰连接波纹管截止阀

主要性能参数 CJc41H-150(Lb)型锻钢法兰连接 波纹管截止阀 主要性能参数 型号 压力级(Lb) 工作压力/Mpa 适用温度/℃ 适用介质 材料 阀体阀盖 阀杆 密封面 填料 CJc41H150(Lb) 150 2.0 350 热煤 碳素钢 铬不锈钢 铬不锈钢 柔性石墨 主要外形及结构尺寸 CJc41H...
AJ41Y型150(Lb) ~600(Lb)法兰截止阀

AJ41Y型150(Lb) ~600(Lb)法兰截止阀

主要性能参数 AJ41Y型150(Lb) ~600(Lb)法兰 截止阀 主要性能参数 型号 压力级(Lb) 适用介质 适用温度/℃ 材料 阀体 阀杆 阀瓣 填料、墊圈 AJ41Y150(Lb) -600( Lb) 150- 600 水、蒸汽、 油品等 ﹣28~550 WCB 2Crl3 WCB 柔性石墨环、柔性石墨 缠绕垫 AJ41Y150(...
J41B、J41SA、J41H型PN25、PN40铁制截止阀

J41B、J41SA、J41H型PN25、PN40铁制截止阀

主要性能参数 J41B、J41SA、J41H型PN25、PN40铁制 截止阀 主要性能参数 型号 PN 工作压力 /MPa 适用温度 /℃ 适用介质 材 料 阀体、阀盖 阀杆 阀瓣 填料 J41B25Z 25 2.5 -40﹣150 氧、氨液 灰铸铁 碳钢 _ 聚四氟 乙烯 J41B25Q 球墨铸铁 J41SA25Z 灰铸铁 J41H...