专业自控阀门10载以上
工恒阀门[工匠精神][品质永恒]
联系方式
021-80392609
15601629388
您当前的位置: 主页 > 阀门标准

阀门标准

公称压力级Class表示的压力自密封阀盖的楔式闸阀力矩参考表

公称压力级Class表示的压力自密封阀盖的楔式闸阀力矩参考表

公称压力级Class表示的压力自密封阀盖的楔式 闸阀 力矩参考表 公称尺寸 Class 600 900 1500 2500 DN/mm NPS/in 力 矩/N-m 80 3 29 40 69 110 100 4 50 71 111 194 150 6 129 174 307 381 200 8 232 319 537 727 250 10 379 530 948 1398 300 12 550 740 1409...
SJ41H-25、SJ41H-40型水封截止阀

SJ41H-25、SJ41H-40型水封截止阀

主要性能参数 SJ41H-25、SJ41H-40型 水封截止阀 主要性能参数 型号 PN 工作压力 /MPa 适用温度 /℃ 适用介质 材 料 阀体、阀盖 阀杆 阀瓣 密封面 填料 SJ41H25 25 2.5 蒸汽、 空气等无腐蚀性介质等 碳素钢铸件 2Crl3 WCB 铁基合金 柔性石墨 SJ41H40 40 4.0...
J41N、J41H型PN16~PN63钢制截止阀

J41N、J41H型PN16~PN63钢制截止阀

主要性能参数 J41N、J41H型PN16~PN63 钢制截止阀 主要性能参数 型号 PN 工作压力 /Mpa 适用温度 /℃ 适用介质 材料 阀体、阀杆 阀瓣 阀杆 密封面配对材料 J41N16 16 1.6 80 石油、空气、氮气等无腐蚀性介质 碳素钢 碳素钢 铬不锈钢 尼龙 J41N25 25 2.5 J41N4...
J41B-25型钢制氨截止阀

J41B-25型钢制氨截止阀

主要性能参数 J41B-25型钢制氨 截止阀 主要性能参数 型号 PN 工作压力/Mpa 适用温度/℃ 适用介质 材料 阀体、阀盖 阀瓣 密封面 阀杆 填料 阀杆螺母 J41B25 25 2.5 ﹣40~ 150 氨、氨液 碳素钢 碳素钢 巴氏合金 不锈钢 聚四氟乙烯 铜合金 主要外形及结构尺寸 J...
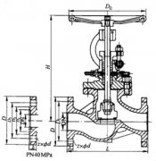
J41B-25型法兰连接钢制截止阀

J41B-25型法兰连接钢制截止阀

主要性能参数 J41B-25型法兰连接钢制 截止阀 主要性能参数 型号 PN 工作压力 /Mpa 适用温度 /℃ 适用介质 材料 阀体、阀盖 阀瓣 阀扦 密封面配对材料 J41B25 25 2.5 150 氮气、液氨 碳素钢铸件或锻件 碳素钢铸件或锻件 铬不锈钢 巴氏合金 主要外形及结构尺寸...