专业自控阀门10载以上
工恒阀门[工匠精神][品质永恒]
联系方式
021-80392609
15601629388
您当前的位置: 主页 > 阀门标准

阀门标准

D341W-1C、D941W-1C型电动高温蝶阀、蜗轮高温蝶阀

更新时间  2014-12-05 10:52 阅读

主要性能参数

D341W-1C、D941W-1C型电动高温蝶阀、蜗轮高温蝶阀主要性能参数
型号 PN 工作压力/Mpa 适用温度/℃ 适用介质 介质流速/(m/s) 材料
泄漏率 阀体、阀板 阀轴 填料
D341W-1C 1 0.1 常温 煤气、空气、烟道气 ≤30 0.5% Q235(A3) 45 石棉绳
D941W-1C

主要外形及结构尺寸

D341W-1C、D941W-1C型电动高温蝶阀、蜗轮高温蝶阀主要外形及结构尺寸(mm)
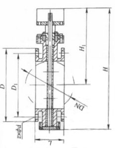
DN L D D1 z×φd H H1 重量/kg
200 140 320 280 8×φ17.5 715 531 66
250 140 375 335 12×φ17.5 822 593 78
300 170 440 395 12×φ22 910 652
350 170 490 445 12×φ22
400 190 540 495 16×φ22 990 682 128
450 190 595 550 16×φ22 1037 710 130
500 190 645 600 20×φ22 »258 906 183
600 210 755 705 20×φ26 1490 1026 211
700 210 860 810 24×φ26 1480 1010 327
800 210 975 Q20 24×φ30 1633 1108 378
900 250 1075 1020 24×φ30
1000 250 1075 1120 28×φ30
1200 250 1375 1320 32×φ30 2345 1585 763
1400 300 1575 1520 36×φ30
1600 300 1790 1730 40×φ30
1800 300 1990 1930 44×φ30
2000 300 2190 2130 48×φ30 3205 1180 1502

产品外形结构尺寸图

D341W-1C、D941W-1C型电动高温蝶阀、蜗轮高温蝶阀主要外形及结构尺寸图