主要性能规范
D343X型PN1.0~1.6Mpa铁制蜗杆传动双偏心蝶阀主要性能规范
|
型号 |
公称压力
PN/Mpa |
试验压力/Mpa |
适用温度
/℃ |
适用介质 |
|
壳体试验 |
密封试验 |
|
D343X-10 D343X-10Q |
1.0 |
1.5 |
1.1 |
≤120
根据橡胶品种 |
水、污水、油品、空气等 |
|
D343X-16 D343X-16Q |
1.6 |
2.4 |
1.76 |
主要零部件材料
D343X型PN1.0~1.6Mpa铁制蜗杆传动双偏心蝶阀主要零部件材料
|
型号 |
零件名称 |
|
阀 体 |
蝶 板 |
阀 杆 |
阀 座 |
填 料 |
|
D343X-10 |
灰铸铁 |
球墨铸铁
(表面处理〉 |
铬不锈钢 |
氯丁、丁腈、
乙丙、氟橡胶 |
0形橡胶圈 |
D343X-10Q
D343X-16Q |
球墨铸铁 |
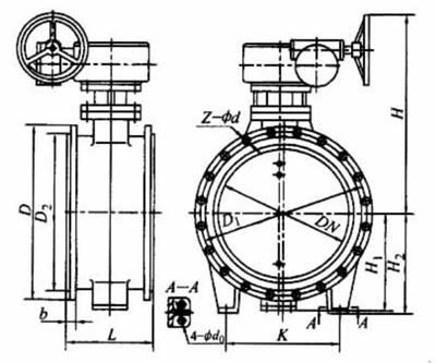
主要外形及结构尺寸
D343X-10、D343X-10Q型铁制蜗杆传动双偏心蝶阀主要外形及结构尺寸(mm)
公称通径
DN/mm |
L |
D |
D1 |
D2 |
b |
Z-φd |
K |
H |
H1 |
H2 |
|
100 |
127 |
220 |
180 |
158 |
20 |
8-φ18 |
— |
320 |
115 |
— |
|
150 |
140 |
285 |
240 |
212 |
22 |
8-φ23 |
— |
400 |
150 |
— |
|
200 |
152 |
340 |
295 |
266 |
24 |
8-φ23 |
— |
495 |
188 |
|
|
250 |
165 |
390 |
350 |
320 |
26 |
12-φ23 |
— |
555 |
216 |
— |
|
300 |
178 |
440 |
400 |
368 |
26 |
12-φ23 |
— |
630 |
240 |
— |
|
350 |
190 |
505 |
460 |
430 |
26 |
16-φ23 |
— |
670 |
270 |
— |
|
400 |
216 |
565 |
515 |
482 |
26 |
16-φ26 |
— |
715 |
310 |
— |
|
450 |
222 |
615 |
565 |
532 |
28 |
20-φ26 |
— |
765 |
340 |
— |
|
500 |
229 |
670 |
620 |
585 |
28 |
20-φ26 |
— |
825 |
370 |
— |
|
600 |
267 |
780 |
725 |
685 |
28 |
20-φ30 |
— |
950 |
433 |
— |
|
700 |
292 |
895 |
840 |
800 |
32 |
24-φ30 |
610 |
1000 |
502 |
555 |
|
800 |
318 |
1010 |
950 |
905 |
34 |
24-φ34 |
690 |
1076 |
585 |
595 |
|
900 |
330 |
1110 |
1050 |
1005 |
36 |
28-φ34 |
760 |
1180 |
614 |
630 |
|
1000 |
410 |
1220 |
1160 |
1115 |
38 |
28-φ34 |
780 |
1270 |
670 |
750 |
|
1200 |
470 |
1450 |
1380 |
1328 |
40 |
32-φ41 |
1000 |
1420 |
760 |
785 |
|
1400 |
530 |
1670 |
1590 |
1530 |
44 |
36-φ43 |
1180 |
1520 |
930 |
960 |
|
1600 |
600 |
1910 |
1820 |
1750 |
48 |
40-φ49 |
1300 |
1625 |
1064 |
1070 |
|
1800 |
670 |
2110 |
2020 |
1950 |
50 |
44-φ49 |
1510 |
1760 |
1120 |
1130 |
|
2000 |
760 |
2325 |
2230 |
2150 |
54 |
48-φ49 |
1590 |
2090 |
1200 |
1225 |
注:以上为D343X-10、D343X-10Q型铁制蜗杆传动双偏心蝶阀主要外形及结构尺寸,如需要D343X-16Q型铁制蜗杆传动双偏心蝶阀主要外形及结构尺寸请致电我公司。
产品外形结构尺寸图