专业自控阀门10载以上
工恒阀门[工匠精神][品质永恒]
联系方式
021-80392609
15601629388
您当前的位置: 主页 > 阀门标准 > 闸阀标准系列 >

闸阀标准系列

<b>Z40H、Z40Y、Z40W型10(K)、20(K)钢制闸阀</b>

Z40H、Z40Y、Z40W型10(K)、20(K)钢制闸阀

主要性能参数 Z40H、Z40Y、Z40W型10(K)、20(K)钢制闸阀主要性能参数 型号 压力级(K) 阀体材料 Z40-10(K) 10 A105、F5、F11、F22、304、304L、316、316L、5A02 Z40-20(K) 20 主要外形及结构尺寸 Z40H、Z40Y、Z40W型10(K)钢制 闸阀 主要外形及结构尺寸(mm)...
Z40H、Z40Y、Z40W型PN100、PN160钢制楔式闸阀

Z40H、Z40Y、Z40W型PN100、PN160钢制楔式闸阀

主要性能参数 Z40H、Z40Y、Z40W型PN100、PN160钢制楔式 闸阀 主要性能参数 型号 PN 工作压力 (Mpa) 适用温度 (℃) 适用介质 材料 阀体、阀盖、闸板 闸杆 密封面 填料 Z40H-100 100 10.0 425 水、蒸汽、油品 碳素钢 铬不锈钢 堆焊铁基合金 石棉石墨 或柔性...
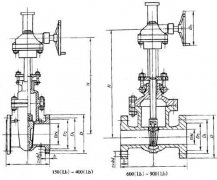
Z40H、Z40Y、Z40W型150(Lb)~600(Lb)钢制楔式闸阀

Z40H、Z40Y、Z40W型150(Lb)~600(Lb)钢制楔式闸阀

主要性能参数 Z40H、Z40Y、Z40W型150(Lb)~600(Lb)钢制楔式闸阀主要性能参数 型号 压力级 (Lb) 适用介质 适用温度 (℃) 材料 阀体、阀盖 阀杆 闸板、阀座 填料 Z40H-150(Lb) 150 水、蒸汽 、油品等无 腐蚀性介质 425 碳素钢 铬不锈钢 碳素钢堆焊铁 基合金...
DZ40Y型150(Lb)~600(Lb)低温闸阀

DZ40Y型150(Lb)~600(Lb)低温闸阀

主要性能参数 DZ40Y型150(Lb)~600(Lb)低温 闸阀 主要性能参数 型号 压力级 (Lb) 适用介质 适用温度 (℃) 材料 阀体、阀盖、支架、闸板 阀杆 密封面材料 填料、垫片 DZ40Y-150(Lb) 150 丙烷、丙烯 、甲醇、乙烯 等非腐蚀性介质 ﹣46 碳素钢 铬镍钛 不锈钢...
Z40M型150(Lb)~600(Lb)不锈钢楔式闸阀

Z40M型150(Lb)~600(Lb)不锈钢楔式闸阀

主要性能参数 Z40M型150(Lb)~600(Lb)不锈钢楔式 闸阀 主要性能参数 型号 压力级 (Lb) 适用温度 (℃) 适用介质 材料 阀体、阀盖、闸板 闸杆 密封面 填料 Z40M-150(Lb)P 150 150 腐蚀性介质 铬镍钛不锈钢 蒙乃尔合金 蒙乃尔合金 镶氟 聚四氟乙烯 Z40M-300(L...